« Un espace simple mais pas impersonnel, serein mais pas froid, tentateur mais pas opulent, plein de charme, mais sans nostalgie… » Andrée Putman

Déco-D, agence de design d'espace et de décoration intérieure, vous propose un service sur mesure ! L'agence propose des compétences artistiques et techniques et s'appuie sur un réseau de professionnels pour façonner des lieux de vie : habitations privées, lieux publics et espaces éphémères.

Projet global de réagencement de l'espace, suivi de chantier, choix du mobilier et de la décoration, sur mesure ou du commerce, nous construisons ensemble le projet qui correspond à vos attentes à l'aide de planches d'ambiance et plans 3D. Paris et sa région.

Présentation


Après une enfance passée à l'international (Soudan, Bulgarie, US, Golfe, Irlande, Mexique), un diplôme d'école de commerce et 6 années passées en marketing dans des grands groupes internationaux et…3 enfants, je me tourne vers ma passion : la décoration d'intérieur et l'agencement d'espace. L'aventure de la reconversion commence…

Depuis ma tendre enfance, chaque lieu dans lequel je rentre, m'inspire un voyage d'agencement, d'organisation, de décoration. J'ai voulu concrétiser mon engouement pour les espaces, les objets et les matières en en faisant mon métier ! Mon univers, « classic with a twist », éclectique, inspiré… Mes longues années à l'étranger m'ont également permis de développer ma créativité, mon ouverture d'esprit et mon sens de l'écoute.

Après une formation à l'école Boulle et une expérience auprès de grandes agences de décoration et designer, j'accompagne le développement des activités d'un designer et je crée Déco-D en 2014. Mon ambition est de créer une harmonie, une circulation fluide, d'éveiller les sens de faire plonger dans un univers dans lequel on se sent bien et qui est le reflet d'une personnalité.

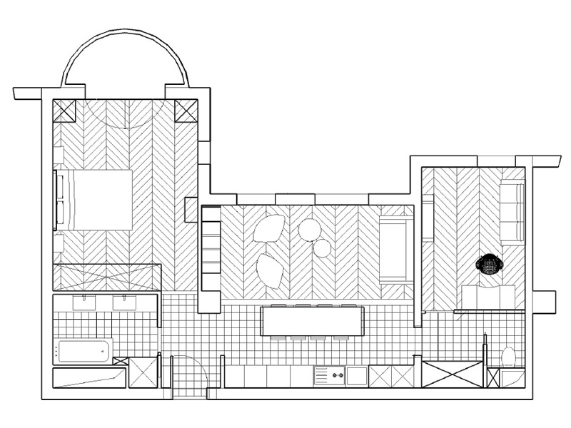
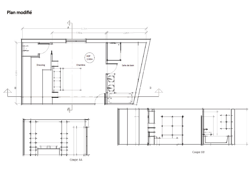
Sur ce site vous trouverez mes projets d'études et réalisations.

Portfolio

Prestations


Concevoir
et aménager

Qu'il s'agisse d'un bien que vous habitez, que vous souhaitiez le vendre ou le louer, de la pièce unique aux très grands espaces… il s'agit de tirer le meilleur parti des volumes en s'adaptant aux lieux, aux besoins et aux envies. Je tiens compte des contraintes techniques et budgétaires, joue avec les volumes, les couleurs, les matériaux et les éclairages pour concevoir des espaces agréables à vivre. Avec mes créations sur mesure ou provenant du commerce, l'objectif est d'allier esthétisme et fonctionnalité.

Décorer et créer une ambiance

Que vous manquiez de temps ou d'idées, que vous n'arriviez pas à faire le tri dans ce que vous aimez, je suis là pour vous aider. Le choix des matériaux et revêtements, des rideaux, du mobilier, du linge de maison, de la vaisselle… sont autant de points sur lesquels je peux intervenir et vous accompagner en mettant à votre disposition ma connaissance des fournisseurs.
C'est vous qui décidez du périmètre d'intervention !

Coordonner et assurer la logistique

Je vous propose des solutions et la prise en charge de votre projet dans son ensemble : je propose les artisans et corps de métier compétents, fais réaliser des devis, pour la réalisation du chantier.
Je contrôle l'avancement des travaux et leur bonne exécution. J'assure également la gestion des achats, de leur livraison et de leur mise en place.

Accompagner les professionnels

Hôteliers, commerçants ou autre ... que vous souhaitiez rénover ou redonner une dynamique à vos espaces de travail, je vous apporte écoute et je vous accompagne dans vos projets.
Architecte et décorateurs, en surcharge de travail passagère ou régulière, j'interviens aussi en tant que sous-traitant free-lance.

Quelque-soit le projet, il se déroule par étapes et évolue selon un calendrier déterminé;
pour toute demande de tarif personnalisée veuillez me consulter.

Contact

Portfolio

Projets privés


Portfolio

Projets professionnels


Contact


N'hésitez pas à me contacter !
Expliquez votre projet en quelques lignes, je serai heureuse de répondre à vos questions.

+33 6 87 99 12 01




Ce site est édité par la société Déco-d, Auto-entrepreneur N° SIRET : 803 221 340 00026 dont le siège social est situé 4, avenue de Normandie 78000 Versailles


Tél. : + 33 (0)6 87 99 12 01
Mail : delphine@deco-d.net

Le directeur de la publication est Delphine Ferrand
Le site est hébergé par la société FUSACQ,
27, rue Taitbout, 75009 Paris
Tél. :+33 (0)1 48 28 20 23

Les éléments édités sur le site deco-d.net incluant notamment des logos, des marques, des textes, des photographies, des images, des dessins ou tableaux constituent des œuvres protégées par des droits de propriété intellectuelle. La reproduction ou la représentation, totale ou partielle, ou toute autre forme d'exploitation de ce site est interdite.